6 Սենյականոց Սեփական Տուն, 185քմ, Նորմալ Վիճակում, Ավտոտնակով
Վաճառվում է ընդարձակ և լուսավոր առանձնատուն
Վաճառվում է մեծ, լուսավոր և ընդարձակ առանձնատուն՝ հանգիստ և հարմարավետ վայրում։ Տունը կառուցված է բարձր որակով և ունի գեղեցիկ լեռնային տեսարաններ։
Հողամասը 4 կողմից ամբողջությամբ պարսպապատված է։ Տան պատերը կառուցված են կրկնակի տուֆ քարով, ինչը ապահովում է ամրություն և լավ ջերմամեկուսացում։
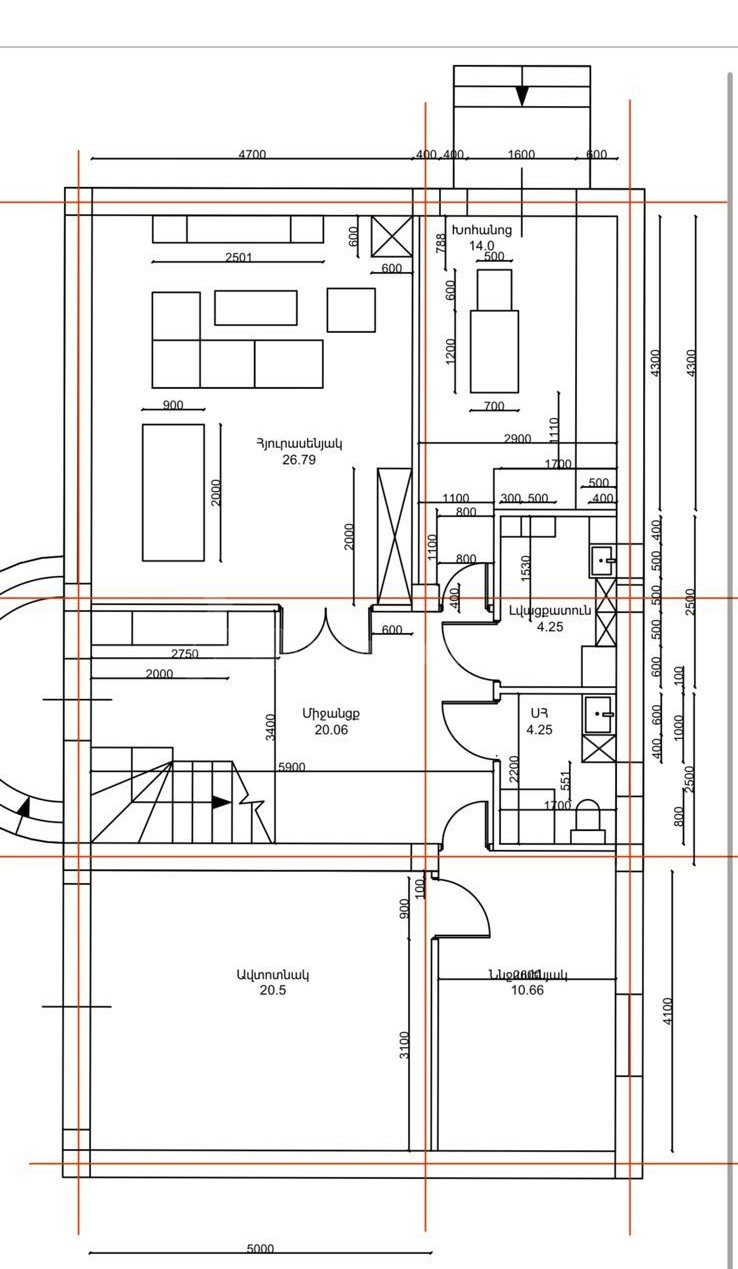
1-ին հարկ
Ընդարձակ հյուրասենյակ
Առանձին խոհանոց
Ննջարան
Լվացքատուն
Սանհանգույց
Ավտոտնակ
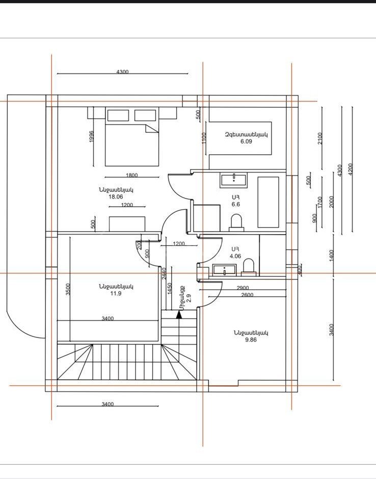
2-րդ հարկ
Մաստեր ննջարան՝ զգեստապահարանով, սեփական սանհանգույցով և մեծ պատշգամբով
Երկրորդ ննջարան՝ սեփական սանհանգույցով և մեծ տեռասսայով
Երրորդ ննջարան՝ պատշգամբով
Լրացուցիչ առավելություններ
Որակյալ ալյումինե վիտրաժային պատուհաններ հաստ պրոֆիլներով
Մգեցված և ջերմամեկուսիչ ապակիներ (STARK x2)
3 ֆազ հոսանքի հնարավորություն
Պատերը գաջված են
Տեղադրված է որակյալ ավտոմատ էլեկտրական ավտոտնակի դարպաս
Տան 2-րդ հարկը վերանորոգված է՝ բացառությամբ պատերի ներկման աշխատանքների:
Գտնվելու վայր
Տունը գտնվում է Զովունի գյուղում՝ Եղվարդի խճուղուց ընդամենը 150 մետր հեռավորության վրա։
Տեսարան
Տնից բացվում է գեղեցիկ տեսարան դեպի Արարատ լեռ, Արագած լեռ և Հատիս լեռ։
- Ավտոտնակ
- Ավտոկայանատեղի
- Անվտանգության համակարգ
- Դոմոֆոն
- Լողավազան
- Մանղալ
- Մշտական ջուր
- Կոյուղի
- Ոռոգման ջուր
- Ջեռուցում
- Զովունու դպրոց
- Զովունու մանկապարտեզ
- market
- Ծիրան սուպերմարկետ
- N 20
- pharmacy
- Կոնվերս բանկ
| Տարածաշրջան: | Կոտայք, Զովունի գյուղ |
|---|---|
| Նշանակություն: | Սեփական տուն, Նորակառույց |
| Սենյակներ: | 6 |
| Տան մակերես: | 185 մ |
| Հողի մակերես: | 400 մ |
| Վերանորոգում: | Նորմալ վիճակ |
| Հրապարակվել է: | 13.03.2026 |
|---|
Պասիվացնել
Ներկա պահին հայտարարությունը գովազդվում է Facebook և Instagram հարթակներում: Այն պասիվացնելով գովազդը վաղաժամ կավարտվի:
Համաձայնության դեպքում խնդրում ենք ընտրել տարբերակներից մեկը և սեղմել Պասիվացնել կոճակը:
Հեռացնել
Ներկա պահին հայտարարությունը գովազդվում է Facebook և Instagram հարթակներում: Հայտարարությունը հեռացնելով գովազդը վաղաժամ կավարտվի:
Համաձայնության դեպքում խնդրում ենք ընտրել տարբերակներից մեկը և սեղմել Հեռացնել կոճակը:
Խնդրում ենք խոսակցության մեջ ասել, որ հայտարարությունը տեսել եք SENYAK.am կայքում:
Շնորհակալություն
Հավանածներում ավելացնելու համար պետք է մուտք գործել:
Հաղորդագրություն ուղարկելու համար պետք է մուտք գործել:
Հայտարարությունն ուղարկելու համար պետք է մուտք գործել:



















