4 Սենյականոց Բնակարան, 90քմ, 4/13 հարկ, Կապիտալ Վերանորոգված
Կոդ: 1598Հատուկ«Թոփ»ՇՏԱՊՆկարագրություն Միջին շուկայական 1մ² մակերեսի գինը ըստ տարածագնահատման գոտու Դավթաշեն (Գոտի 5) (Տվյալները վերցված են կադաստրի կոմիտեի կողմից կատարված ամենամսյա վերլուծությունից) 488 500 դրամ (2024 թ․ ապրիլ)Մոտակայքում
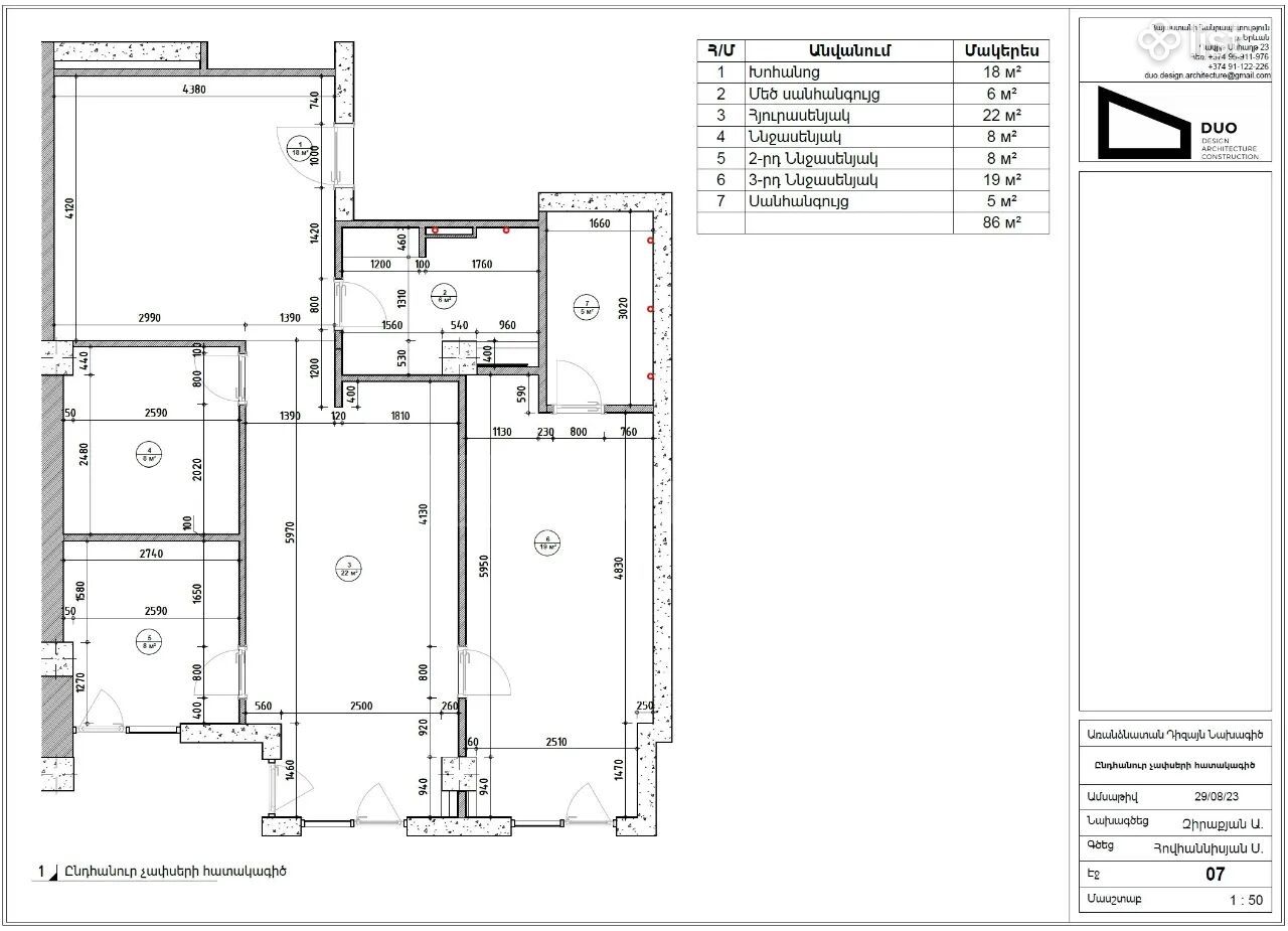
Վաճառվում է 4 սենյականոց բնակարան նորակառույցումՎայրը – Երևան, Դավթաշեն 1-ին թաղամասՄակերես – 92 մ️ Սենյակներ – 4 (մեծ ննջասենյակ՝ 19 մ, երկու փոքր ննջասենյակ՝ 9 մ-ական, հյուրասենյակ՝ 22 մ, խոհանոց՝ 18 մ)Սանհանգույցներ – 2 հատ (յուրաքանչյուրը՝ 6 մ)Պատժգամբ – 6 մՎիճակ – դիզայների լուծումներով և հսկողությամբ վերանորոգված️ Կահավորում – վաճառվում է ամբողջությամբ կահավորված, կենցաղային տեխնիկայով
Լրացուցիչ- Բաց պատշգամբ
- Սամվել Գևորգյանի անվան թիվ 189 դպրոց
- Պարտեզ № 59
- Էմմա Կաշխչյան ԱՁ
- Արեվիկ
- Medesy
- Ճառագայթաբանության և այրվածքաբանության գիտական կենտրոն
- Դեղատուն
- Կոնվերս բանկ
$190 000
| Տարածաշրջան: | Երևան, Դավթաշեն |
|---|---|
| Շինության տիպ: | Մոնոլիտ |
| Սենյակներ: | 4 |
| Մակերես: | 90 մ² |
| Հարկ: | 4/13 |
| Առաստաղի բարձրություն: | 2,8 մ |
| Վերանորոգում: | Կապիտալ |
| Հրապարակվել է: | 12.01.2026 |
|---|---|
| Թարմացվել է: | 16.01.2026 |
Պասիվացնել
Ներկա պահին հայտարարությունը գովազդվում է Facebook և Instagram հարթակներում: Այն պասիվացնելով գովազդը վաղաժամ կավարտվի:
Համաձայնության դեպքում խնդրում ենք ընտրել տարբերակներից մեկը և սեղմել Պասիվացնել կոճակը:
Հեռացնել
Ներկա պահին հայտարարությունը գովազդվում է Facebook և Instagram հարթակներում: Հայտարարությունը հեռացնելով գովազդը վաղաժամ կավարտվի:
Համաձայնության դեպքում խնդրում ենք ընտրել տարբերակներից մեկը և սեղմել Հեռացնել կոճակը:
Խնդրում ենք խոսակցության մեջ ասել, որ հայտարարությունը տեսել եք SENYAK.am կայքում:
Շնորհակալություն
Բողոքել մոդերատորին
Ավելացնել հավանածներում
Հավանածներում ավելացնելու համար պետք է մուտք գործել:
Հավանածներում ավելացնելու համար պետք է մուտք գործել:
Գրել հաղորդագրություն
Հաղորդագրություն ուղարկելու համար պետք է մուտք գործել:
Հաղորդագրություն ուղարկելու համար պետք է մուտք գործել:
Ուղարկել ընկերոջը
Հայտարարությունն ուղարկելու համար պետք է մուտք գործել:
Հայտարարությունն ուղարկելու համար պետք է մուտք գործել:







