3 Սենյականոց Բնակարան Նորակառույցում, 70քմ, 5/9 հարկ, Կապիտալ Վերանորոգված
Հատուկ«Թոփ»ՇՏԱՊՆկարագրություն Միջին շուկայական 1մ² մակերեսի գինը ըստ տարածագնահատման գոտու Կենտրոն (Գոտի 3) (Տվյալները վերցված են կադաստրի կոմիտեի կողմից կատարված ամենամսյա վերլուծությունից) 851 000 դրամ (2024 թ․ ապրիլ)Մոտակայքում
Վաճառվում է 3 սենյականոց բնակարան Անտառայինում՝
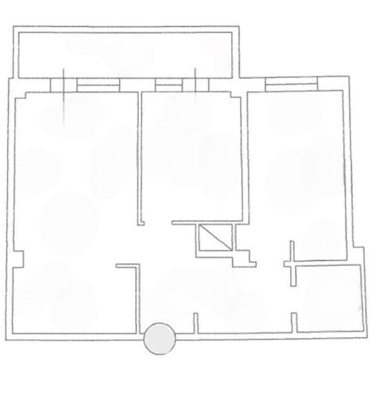
📐Մակերեսը 78քմ
▪️ 2 ննջասենյակ
▪️ 1 հյուրասենյակ- խոհանոց (Studio)
▪️ 1 սանհանգույց
▪️Բաց պատշգամբ (հյուրասենյակից և ննջաս.-կից)
❗️վերանորոգված
Մանրամասների համար գրել կամ 📲 ✅ (WhatsApp)
Լրացուցիչ📐Մակերեսը 78քմ
▪️ 2 ննջասենյակ
▪️ 1 հյուրասենյակ- խոհանոց (Studio)
▪️ 1 սանհանգույց
▪️Բաց պատշգամբ (հյուրասենյակից և ննջաս.-կից)
❗️վերանորոգված
Մանրամասների համար գրել կամ 📲 ✅ (WhatsApp)
- Բաց պատշգամբ
- Արևկող
- Վերելակ
- Դոմոֆոն
- Մշտական ջուր
- Տաք ջուր
- Գազ
- Ջեռուցում
- ԴՊՐՈՑ ԹԻՎ 151 ՌՈՒԲԵՆ ՍԵՎԱԿԻ ԱՆՎԱՆ
- "Arevatsaghik"
- Մարշալ Բաղրամյան
- Չայկոֆֆ
- Օրգանիկ սնունդ
- Բժշկական Կենտրոն
- 11-րդ Պոլիկլինիկա
- Tonus-LES
- HSBC
$220 000
| Տարածաշրջան: | Երևան, Կենտրոն |
|---|---|
| Շինության տիպ: | Մոնոլիտ, Նորակառույց |
| Սենյակներ: | 3 |
| Մակերես: | 70 մ² |
| Հարկ: | 5/9 |
| Առաստաղի բարձրություն: | 3 մ |
| Վերանորոգում: | Կապիտալ |
| Հրապարակվել է: | 18.04.2026 |
|---|
Պասիվացնել
Ներկա պահին հայտարարությունը գովազդվում է Facebook և Instagram հարթակներում: Այն պասիվացնելով գովազդը վաղաժամ կավարտվի:
Համաձայնության դեպքում խնդրում ենք ընտրել տարբերակներից մեկը և սեղմել Պասիվացնել կոճակը:
Հեռացնել
Ներկա պահին հայտարարությունը գովազդվում է Facebook և Instagram հարթակներում: Հայտարարությունը հեռացնելով գովազդը վաղաժամ կավարտվի:
Համաձայնության դեպքում խնդրում ենք ընտրել տարբերակներից մեկը և սեղմել Հեռացնել կոճակը:
Խնդրում ենք խոսակցության մեջ ասել, որ հայտարարությունը տեսել եք SENYAK.am կայքում:
Շնորհակալություն
Բողոքել մոդերատորին
Ավելացնել հավանածներում
Հավանածներում ավելացնելու համար պետք է մուտք գործել:
Հավանածներում ավելացնելու համար պետք է մուտք գործել:
Գրել հաղորդագրություն
Հաղորդագրություն ուղարկելու համար պետք է մուտք գործել:
Հաղորդագրություն ուղարկելու համար պետք է մուտք գործել:
Ուղարկել ընկերոջը
Հայտարարությունն ուղարկելու համար պետք է մուտք գործել:
Հայտարարությունն ուղարկելու համար պետք է մուտք գործել:


