2 Սենյականոց Բնակարան Նորակառույցում, 68քմ, 8/15 հարկ, Զրոյական Վիճակում
Կոդ: G1247Հատուկ«Թոփ»ՇՏԱՊՆկարագրություն Մոտակայքում
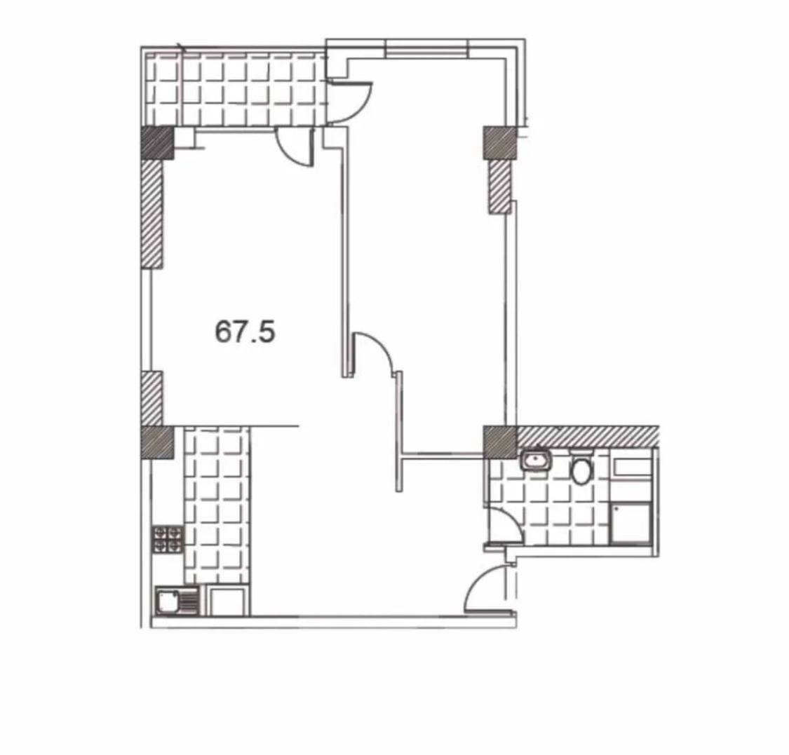
Վաճառվում է 2 սենյականոց բնակարան նորակառույց շենքում ՝Բագրեվանդ Ռեզիդենսում։Մակերեսը կազմում է 68ք․մ։Տեղակայված է 15 հարկանի մոնոլիտ շենքի 8-րդ հարկում։Արևկող է, տեսարանը դեպի շենքի հիմնական բակ և հարակից թաունհաուզներ: Տեղադրված են մուտքի դուռը (դրսից մոխրագույն, ներսից սպիտակ) և վիտրաժային պատուհանները: Ներսում բոլոր «կեղտոտ» գործերը արված են, մնում է ձեր ճաշակով վերանորոգեք ու ապրեք:Գործում է Եկամտահարկի վերադարձի օրենքը:Ավարտական ակտը նախատեսված է ապրիլ ամսին։Գործակալության միջնորդավճարը կազմում է վերջնական արժեքի 2%-ը։Մանրամասների և տեսնելու համար զանգհարել։
Լրացուցիչ- Բաց պատշգամբ
- Արևկող
- Վերելակ
- Մշտական ջուր
- Տաք ջուր
- Գազ
- «Էլիտա» դպրոց
- Մանկապարտեզ 101
- Աբոյի Խանութ
- ՄՋ սուպերմարկետ
- Մեդիկուս
- Թիվ 12 պոլիկլինիկա
- Gedeon Richter
- ACBA
$85 000
| Տարածաշրջան: | Երևան, Նոր Նորք |
|---|---|
| Շինության տիպ: | Մոնոլիտ, Նորակառույց |
| Սենյակներ: | 2 |
| Մակերես: | 68 մ² |
| Հարկ: | 8/15 |
| Առաստաղի բարձրություն: | 3 մ |
| Վերանորոգում: | Զրոյական վիճակ |
| Հրապարակվել է: | 18.02.2026 |
|---|
Պասիվացնել
Ներկա պահին հայտարարությունը գովազդվում է Facebook և Instagram հարթակներում: Այն պասիվացնելով գովազդը վաղաժամ կավարտվի:
Համաձայնության դեպքում խնդրում ենք ընտրել տարբերակներից մեկը և սեղմել Պասիվացնել կոճակը:
Հեռացնել
Ներկա պահին հայտարարությունը գովազդվում է Facebook և Instagram հարթակներում: Հայտարարությունը հեռացնելով գովազդը վաղաժամ կավարտվի:
Համաձայնության դեպքում խնդրում ենք ընտրել տարբերակներից մեկը և սեղմել Հեռացնել կոճակը:

Խնդրում ենք խոսակցության մեջ ասել, որ հայտարարությունը տեսել եք SENYAK.am կայքում:
Շնորհակալություն
Բողոքել մոդերատորին
Ավելացնել հավանածներում
Հավանածներում ավելացնելու համար պետք է մուտք գործել:
Հավանածներում ավելացնելու համար պետք է մուտք գործել:
Գրել հաղորդագրություն
Հաղորդագրություն ուղարկելու համար պետք է մուտք գործել:
Հաղորդագրություն ուղարկելու համար պետք է մուտք գործել:
Ուղարկել ընկերոջը
Հայտարարությունն ուղարկելու համար պետք է մուտք գործել:
Հայտարարությունն ուղարկելու համար պետք է մուտք գործել:



