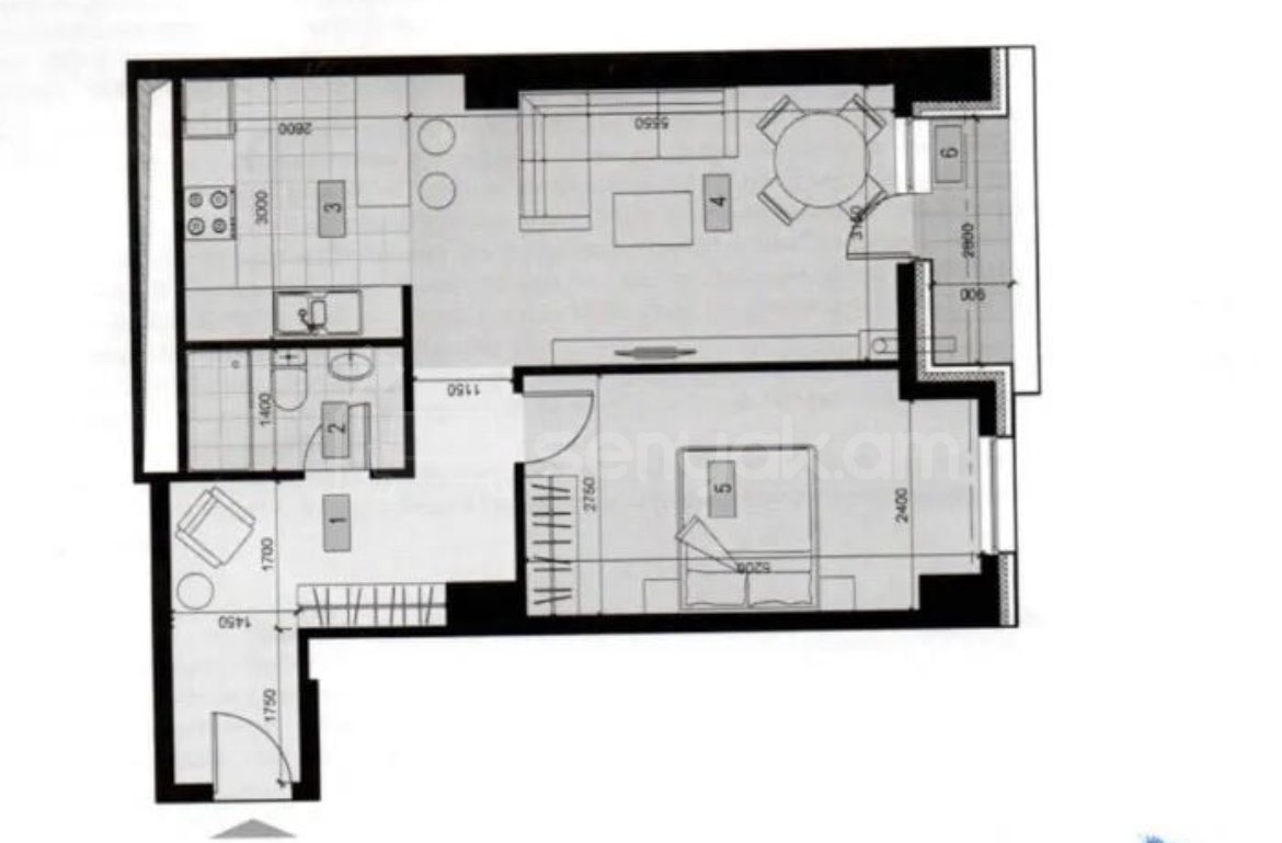
2 Սենյականոց Բնակարան Նորակառույցում, 58քմ, 16/18 հարկ, Զրոյական Վիճակում
Կոդ: E-438Վաճառվում է 2 սենյականոց բնակարան Հրաչյա Աճառյան փողոցի նորակառույց մոնոլիտ շենքի 16-րդ հարկում: Բնակարանը զրոյական վաճառվում է: Կոմունալ պայմանները՝ (լույս, ջուր, լույս):
Գործակալության միջնորդավճարը վերջնական գնի 2%-ի չափով:
Հարցերի համար զանգահարել:
- Բաց պատշգամբ
- Արևկող
- Վերելակ
- Դոմոֆոն
- Մշտական ջուր
- Գազ
- Թիվ 124 Դպրոց
- Սիթիզեն
- Իվի Շոփ ՍՊԸ
- Shahavet Supermarket
- "Ավանգարդ Բժշկական Կենտրոն"
- Միավ/Ձիավ Կենտրոն
- "AlfaParm"
- ACBA
| Տարածաշրջան: | Երևան, Ավան |
|---|---|
| Շինության տիպ: | Մոնոլիտ, Նորակառույց |
| Սենյակներ: | 2 |
| Մակերես: | 58 մ² |
| Հարկ: | 16/18 |
| Առաստաղի բարձրություն: | 3 մ |
| Վերանորոգում: | Զրոյական վիճակ |
| Հրապարակվել է: | 15.11.2025 |
|---|
Պասիվացնել
Ներկա պահին հայտարարությունը գովազդվում է Facebook և Instagram հարթակներում: Այն պասիվացնելով գովազդը վաղաժամ կավարտվի:
Համաձայնության դեպքում խնդրում ենք ընտրել տարբերակներից մեկը և սեղմել Պասիվացնել կոճակը:
Հեռացնել
Ներկա պահին հայտարարությունը գովազդվում է Facebook և Instagram հարթակներում: Հայտարարությունը հեռացնելով գովազդը վաղաժամ կավարտվի:
Համաձայնության դեպքում խնդրում ենք ընտրել տարբերակներից մեկը և սեղմել Հեռացնել կոճակը:

Խնդրում ենք խոսակցության մեջ ասել, որ հայտարարությունը տեսել եք SENYAK.am կայքում:
Շնորհակալություն
Հավանածներում ավելացնելու համար պետք է մուտք գործել:
Հաղորդագրություն ուղարկելու համար պետք է մուտք գործել:
Հայտարարությունն ուղարկելու համար պետք է մուտք գործել:


