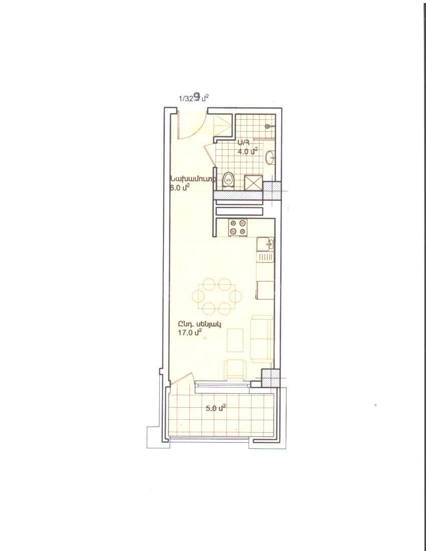
1 Սենյականոց Բնակարան Նորակառույցում, 33քմ, 14/16 հարկ, Զրոյական Վիճակում
Հատուկ«Թոփ»ՇՏԱՊՆկարագրություն Միջին շուկայական 1մ² մակերեսի գինը ըստ տարածագնահատման գոտու Մալաթիա Սեբաստիա (Գոտի 7) (Տվյալները վերցված են կադաստրի կոմիտեի կողմից կատարված ամենամսյա վերլուծությունից) 413 100 դրամ (2024 թ․ ապրիլ)Մոտակայքում
Աջափնյակ համայնքի Լենինգրադյան փողոցում վաճառվում է 33 քմ մակերեսով 1 սենյականոց բնակարան։ Գտնվում է կառուցվող 16 հարկանի մոնոլիտ շենքի 14-րդ հարկում։ Բնակարանը վաճառվում է զրոյական վիճակում։ Տեղադրված կլինի մուտքի երկաթյա դուռ, ալյումինե եվրոպատուհաններ, նախատեսված է կենտրոնացված ջեռուցման համակարգ։ Ունի 1 սանհանգույց, բաց պատշգամբ, բացվում է տեսարան դեպի Երևան Պարկ։ Առկա է բացօթյա կայանատեղի։ Շենքի հանձնումը նախատեսված է 2027 թվականի ամռանը, առկա է սեփականության վկայական։
Մարդատար վերելակ
Այո
Բեռնատար վերելակ
Այո
Խաղահրապարակ
Այո
Կայանատեղի
Այո
Կանաչապատ տարածք
Այո
Կոմունիկացիաներ
Գազ
Այո
Կոյուղի
Այո
Էլեկտրականություն
Այո
Ջրամատակարարում
Այո
Հարդարման կարգավիճակ
Չվերանորոգված
Ալյումինե պատուհաններ
Այո
Բարեկարգված ընդհանուր տարածք
Այո
Գաջապատված պատեր
Այո
Էլեկտրականություն մինչև մուտքի դուռ
Այո
Կառուցված միջնապատեր
Այո
Կոյուղու ընդհանուր կանգնակներ
Այո
Հարթեցված հատակ
Այո
Մուտքի երկաթյա դուռ
Այո
Ջրամատակարարման և կոյուղու խողովակներ` Մինչև կանգնակ
Այո
Ցեմենտավազյա շաղախով երեսսվաղած սանհանգույցի պատեր
Այո
Պոլիպրոպիլենից կամ մետաղյա արտաքին խողովակաշարեր
Այո
Առանց գաջապատման սանհանգույցի և լոգասենյակի պատեր
Այո
Շենքը հագեցած է
9-10 բալ սեյսմակայունություն Վերջին սերնդի 6 վերելակ
Որակյալ ալյումինե պրոֆիլով պատուհաններ
Էլեկտրամոբիլների լիցքավորման կայաններ
Ընդարձակ, կանաչապատ բակ Հասարակական նշանակության տարածքներ
Մանկական խաղահրապարակ
Սուպերմարկետ
Սպորտային խաղադաշտ
Հանգստի տաղավարներ
ԼրացուցիչՄարդատար վերելակ
Այո
Բեռնատար վերելակ
Այո
Խաղահրապարակ
Այո
Կայանատեղի
Այո
Կանաչապատ տարածք
Այո
Կոմունիկացիաներ
Գազ
Այո
Կոյուղի
Այո
Էլեկտրականություն
Այո
Ջրամատակարարում
Այո
Հարդարման կարգավիճակ
Չվերանորոգված
Ալյումինե պատուհաններ
Այո
Բարեկարգված ընդհանուր տարածք
Այո
Գաջապատված պատեր
Այո
Էլեկտրականություն մինչև մուտքի դուռ
Այո
Կառուցված միջնապատեր
Այո
Կոյուղու ընդհանուր կանգնակներ
Այո
Հարթեցված հատակ
Այո
Մուտքի երկաթյա դուռ
Այո
Ջրամատակարարման և կոյուղու խողովակներ` Մինչև կանգնակ
Այո
Ցեմենտավազյա շաղախով երեսսվաղած սանհանգույցի պատեր
Այո
Պոլիպրոպիլենից կամ մետաղյա արտաքին խողովակաշարեր
Այո
Առանց գաջապատման սանհանգույցի և լոգասենյակի պատեր
Այո
Շենքը հագեցած է
9-10 բալ սեյսմակայունություն Վերջին սերնդի 6 վերելակ
Որակյալ ալյումինե պրոֆիլով պատուհաններ
Էլեկտրամոբիլների լիցքավորման կայաններ
Ընդարձակ, կանաչապատ բակ Հասարակական նշանակության տարածքներ
Մանկական խաղահրապարակ
Սուպերմարկետ
Սպորտային խաղադաշտ
Հանգստի տաղավարներ
- Բաց պատշգամբ
- Մշտական ջուր
- Գազ
- Պեյո Յավորովի անվան թիվ 131 միջնակարգ դպրոց (402 մ)
- Թիվ 41 Մանկապարտեզ (285 մ)
- "Արփինե Տեր-Հովսեփյան" Ա/Ձ (158 մ)
- M G Սուպերմարկետ (389 մ)
- Polyclinic No 15 (803 մ)
- Ֆիզիոթերապիայի գիտահետազոտական ինստիտուտ (1745 մ)
- Ալֆա-ֆարմ (506 մ)
- AcbaCreditAgricole bank (499 մ)
$63 000
| Տարածաշրջան: | Երևան, Մալաթիա Սեբաստիա |
|---|---|
| Շինության տիպ: | Մոնոլիտ, Նորակառույց |
| Սենյակներ: | 1 |
| Մակերես: | 33 մ² |
| Հարկ: | 14/16 |
| Առաստաղի բարձրություն: | 3 մ |
| Վերանորոգում: | Զրոյական վիճակ |
| Հրապարակվել է: | 15.02.2026 |
|---|---|
| Թարմացվել է: | 06.04.2026 |
Պասիվացնել
Ներկա պահին հայտարարությունը գովազդվում է Facebook և Instagram հարթակներում: Այն պասիվացնելով գովազդը վաղաժամ կավարտվի:
Համաձայնության դեպքում խնդրում ենք ընտրել տարբերակներից մեկը և սեղմել Պասիվացնել կոճակը:
Հեռացնել
Ներկա պահին հայտարարությունը գովազդվում է Facebook և Instagram հարթակներում: Հայտարարությունը հեռացնելով գովազդը վաղաժամ կավարտվի:
Համաձայնության դեպքում խնդրում ենք ընտրել տարբերակներից մեկը և սեղմել Հեռացնել կոճակը:
Խնդրում ենք խոսակցության մեջ ասել, որ հայտարարությունը տեսել եք SENYAK.am կայքում:
Շնորհակալություն
Բողոքել մոդերատորին
Ավելացնել հավանածներում
Հավանածներում ավելացնելու համար պետք է մուտք գործել:
Հավանածներում ավելացնելու համար պետք է մուտք գործել:
Գրել հաղորդագրություն
Հաղորդագրություն ուղարկելու համար պետք է մուտք գործել:
Հաղորդագրություն ուղարկելու համար պետք է մուտք գործել:
Ուղարկել ընկերոջը
Հայտարարությունն ուղարկելու համար պետք է մուտք գործել:
Հայտարարությունն ուղարկելու համար պետք է մուտք գործել:







